




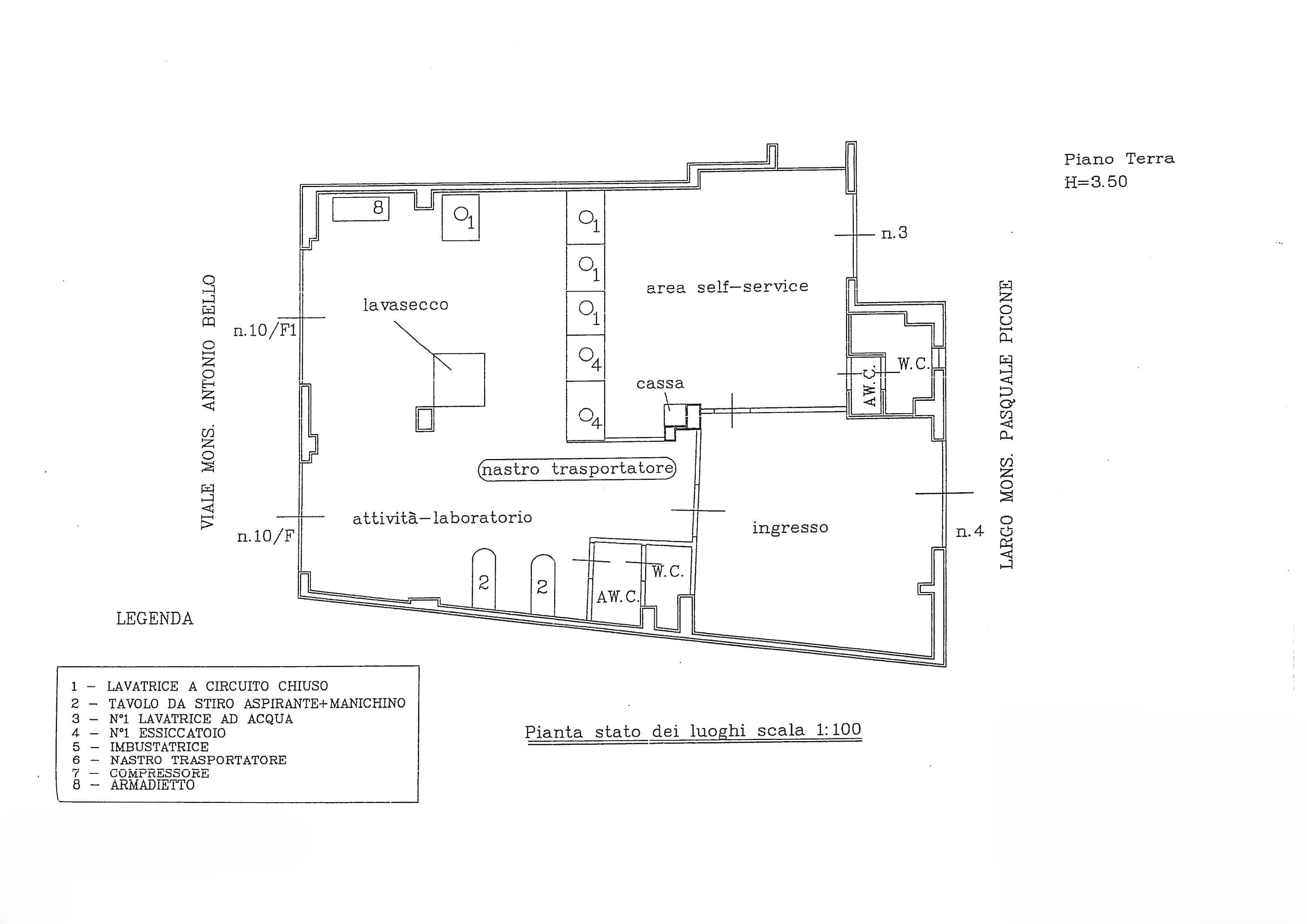
... IN ZONA VIA RUVO, IN PROSSIMITĀ DEL LICEO SCIENTIFICO, PROPONIAMO IN LOCAZIONE AMPIO LOCALE COMMERCIALE DI COMPLESSIVI 143 MQ. CATASTALI. L'IMMOBILE Č CORREDATO DI 4 VETRINE (2 FRONTE STRADA E 2 SUL RETRO PROSPICIENTE STRADA PRIVATA PER CONSENTIRE L'EVENTUALE CARICO/SCARICO MERCI). ATTUALMENTE IL LOCALE Č SUDDIVISO IN 3 AMPI AMBIENTI CON ENTROSTANTI NR. 2 BAGNI. PERALTRO IL LOCALE Č ATTUALMENTE LOCATO (COME DA FOTO) E SI LIBERERĀ ENTRO E NON OLTRE IL 28 FEBBRAIO 2026; FERMO RESTANDO CHE CHI FOSSE INTERESSATO A RILEVARE L'ATTIVITĀ Č POSSIBILE PROCEDERE AL PASSAGGIO CON TUTTA L'ATTREZZATURA GIĀ ESISTENTE (PER LA VENDITA DELL'ATTIVITĀ... TRATTATIVA IN SEDE).
RICHIEDI INFORMAZIONI
Sei interessato a visionare questo immobile, o desideri semplicemente ricevere maggiori informazioni? Compila questo form e verrai contattato da un Consulente Immobiliare professionista entro poche ore.
© 2026 CaseInsieme | Il primo portale per vendere e acquistare casa a Molfetta | Privacy Policy - Cookie Policy