




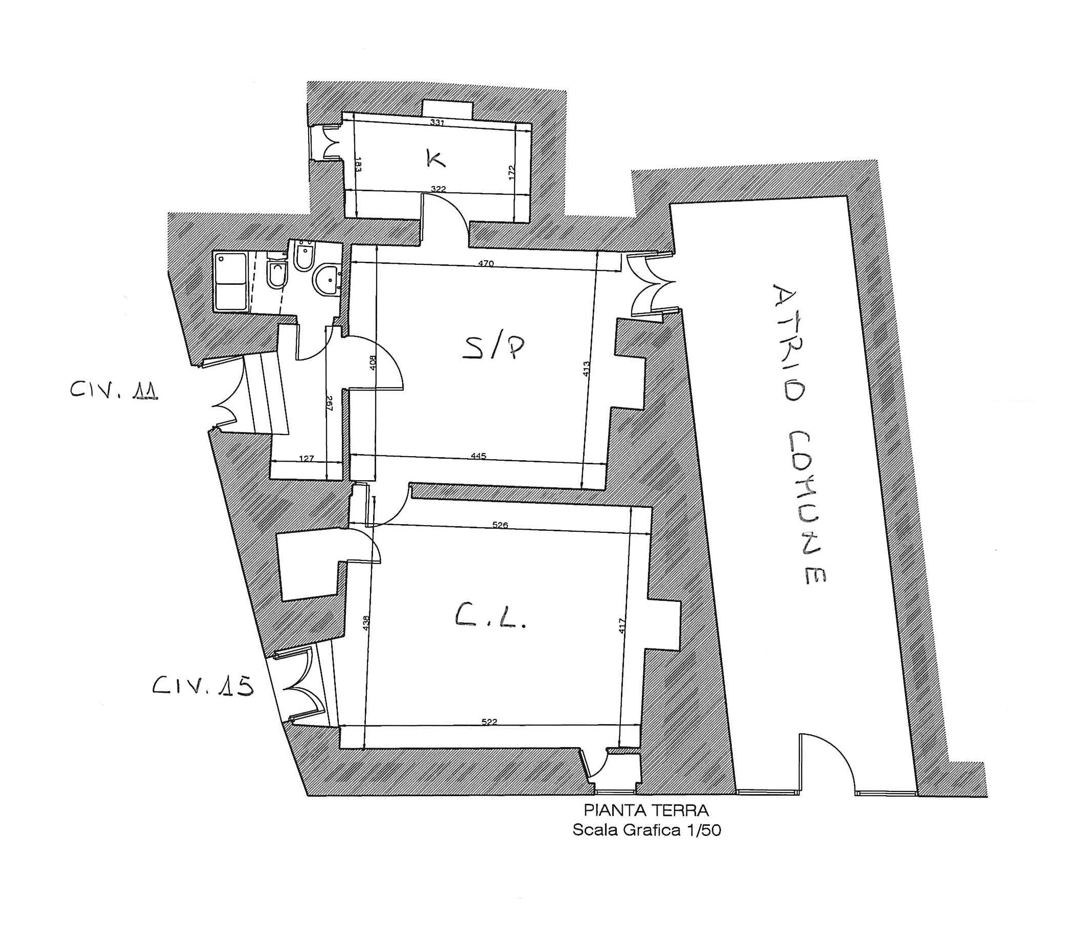
... NEI PRESSI DELLA FARMACIA MASTRORILLI, IN ZONA STORICA, PROPONIAMO IN LOCAZIONE, ABITAZIONE A PIANO TERRA DI 2 VANI ED ACCESSORI CORREDATA DI 3 PUNTI LUCE E COMPOSTO DA: INGRESSO - SOGGIORNO/PRANZO AMBIENTE UNICO - BAGNO - CUCININO - CAMERA DA LETTO MATRIMONIALE - RIPOSTIGLIO - ATRIO IN COMUNE CON ALTRA PROPRIETÀ. LIBERO SUBITO...
RICHIEDI INFORMAZIONI
Sei interessato a visionare questo immobile, o desideri semplicemente ricevere maggiori informazioni? Compila questo form e verrai contattato da un Consulente Immobiliare professionista entro poche ore.
© 2025 CaseInsieme | Il primo portale per vendere e acquistare casa a Molfetta | Privacy Policy - Cookie Policy