




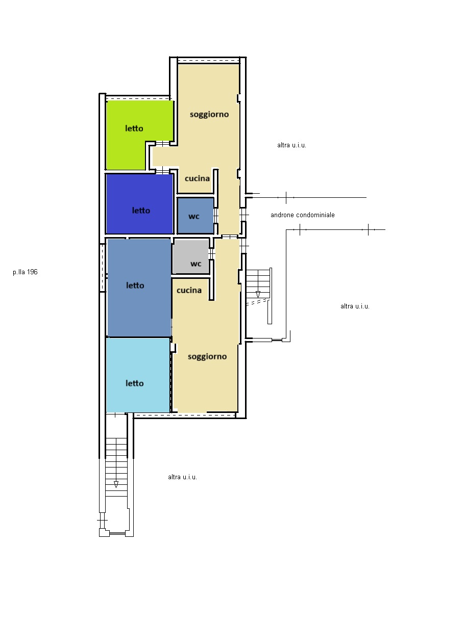
**APPARTAMENTO IN VENDITA A MOLFETTA BISCEGLIE - RESIDENCE NETTUNO** SCOPRI QUESTO AFFASCINANTE APPARTAMENTO SITUATO NEL RINOMATO RESIDENCE NETTUNO, PROPRIO SULLA STRADA MOLFETTA BISCEGLIE. CON UNA SUPERFICIE COMMERCIALE DI 102 M², QUESTO IMMOBILE AL PIANO SEMINTERRATO OFFRE 2 APPARTAMENTI COMUNICANTI COMPOSTI ENTRAMBI DA UN'ACCOGLIENTE INGRESSO, UN LUMINOSO SOGGIORNO CON ANGOLO COTTURA E DUE CAMERE DA LETTO, PERFETTE PER UNA FAMIGLIA O COME RIFUGIO PER LE VACANZE. L'APPARTAMENTO NECESSITA DI RISTRUTTURAZIONE, IL CHE RAPPRESENTA UN'OPPORTUNITÀ UNICA PER PERSONALIZZARLO SECONDO IL PROPRIO GUSTO. IMMAGINA DI TRASFORMARE QUESTO SPAZIO IN UN ANGOLO DI PARADISO, DOVE TRASCORRERE MOMENTI INDIMENTICABILI CON AMICI E FAMILIARI. INOLTRE, LA FACILITÀ DI PARCHEGGIO E L'ACCESSO PRIVATO AL MARE RENDONO QUESTA PROPOSTA ANCORA PIÙ ALLETTANTE. NON PERDERE L'OCCASIONE DI INVESTIRE IN UN IMMOBILE CON GRANDE POTENZIALE. CON UNA POSIZIONE STRATEGICA E UN AMBIENTE TRANQUILLO, QUESTO APPARTAMENTO È IDEALE PER CHI CERCA UNA CASA VACANZA O UN PROGETTO DI RISTRUTTURAZIONE. CONTATTACI PER MAGGIORI INFORMAZIONI E PER ORGANIZZARE UNA VISITA!
RICHIEDI INFORMAZIONI
Sei interessato a visionare questo immobile, o desideri semplicemente ricevere maggiori informazioni? Compila questo form e verrai contattato da un Consulente Immobiliare professionista entro poche ore.
© 2026 CaseInsieme | Il primo portale per vendere e acquistare casa a Molfetta | Privacy Policy - Cookie Policy