




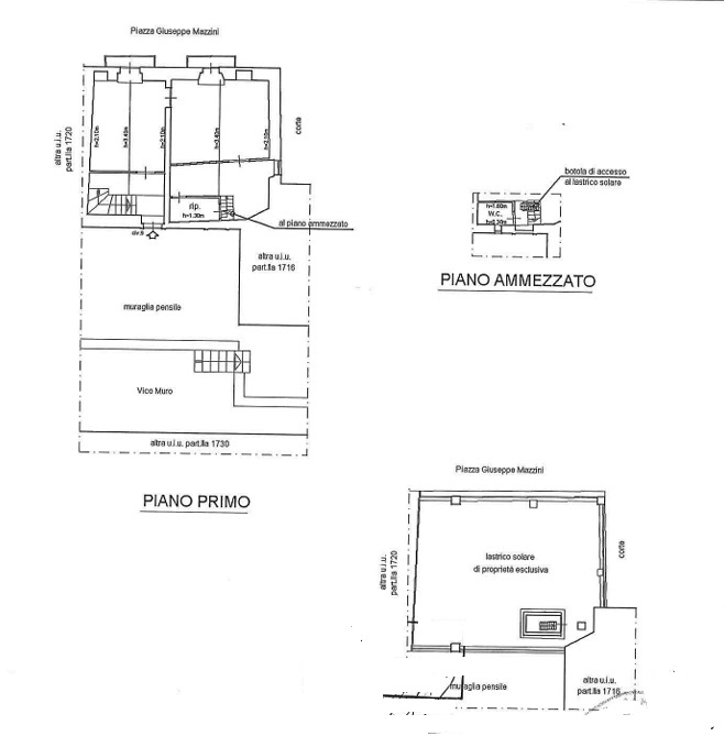
SITUATO NELL' AMMALIANTE CITTA' VECCHIA, CUSTODE DI ANTICHE TRADIZIONI E INCASTONATO TRA LE MURA, A POCHI PASSI DALL' AFFASCINANTE DUOMO, PROPONIAMO IN AFFITTO UN ELEGANTE APPARTAMENTO RISTRUTTURATO E FINEMENTE ARREDATO. SI ACCEDE ALL' IMMOBILE ATTRAVERSO L' ARCO DELLA TERRA, INGRESSO PRINCIPALE DEL CENTRO STORICO, PROSEGUENDO PER VICO MURO . LA RESIDENZA, SI DISTINGUE PER L' ATMOSFERA UNICA CHE SI RESPIRA DURANTE LA SETTIMANA SANTA, AVENDO LA VISTA SU PIAZZA MAZZINI E CORSO DANTE, FULCRO DELLE SUGGESTIVE E FAMOSE PROCESSIONI PASQUALI. UNA SCALA IN PIETRA, CI CONDUCE ALL' APPARTAMENTO, DOVE UN CORRIDOIO CENTRALE SEPARA CON ELEGANZA LA ZONA GIORNO DALLA ZONA NOTTE, QUEST' ULTIMA COMPRENDE DUE CAMERE DA LETTO ENTRAMBE CON BALCONI CHE SI AFFACCIANO SULL' ANTICO BORGO. LA ZONA LIVING SI COMPONE DI UN SALOTTO CON ANGOLO COTTURA, SI AGGIUNGE UN CONFORTEVOLE BAGNO ED UN VANO LAVANDERIA ACCESSORIATO DA LAVATRICE ED ASCIUGATRICE. DALL' INTERNO DELLA RESIDENZA SI ACCEDE AD UN MERAVIGLIOSO TERRAZZO DI PERTINENZA ESCLUSIVO E RECINTATO CON UNA VISTA INCANTEVOLE SUL BORGO ANTICO. A SOLI 400 METRI, SI RAGGIUNGE IL MARE MEDIANTE LA PICCOLA CALETTA ROCCIOSA URBANA DI MOLFETTA CALA SANT'ANDREA, UN ANGOLO TRANQUILLO PER CHI CERCA UN TUFFO IN ACQUE CRISTALLINE, LONTANO DALLA FOLLA E DAGLI STABILIMENTI. E' VERAMENTE UN'OPPORTUNITA' RARA, PER CHI DESIDERA VIVERE IN UNA RESIDENZA AUTENTICA ED UNICA NEL SUO GENERE.
RICHIEDI INFORMAZIONI
Sei interessato a visionare questo immobile, o desideri semplicemente ricevere maggiori informazioni? Compila questo form e verrai contattato da un Consulente Immobiliare professionista entro poche ore.
© 2026 CaseInsieme | Il primo portale per vendere e acquistare casa a Molfetta | Privacy Policy - Cookie Policy