




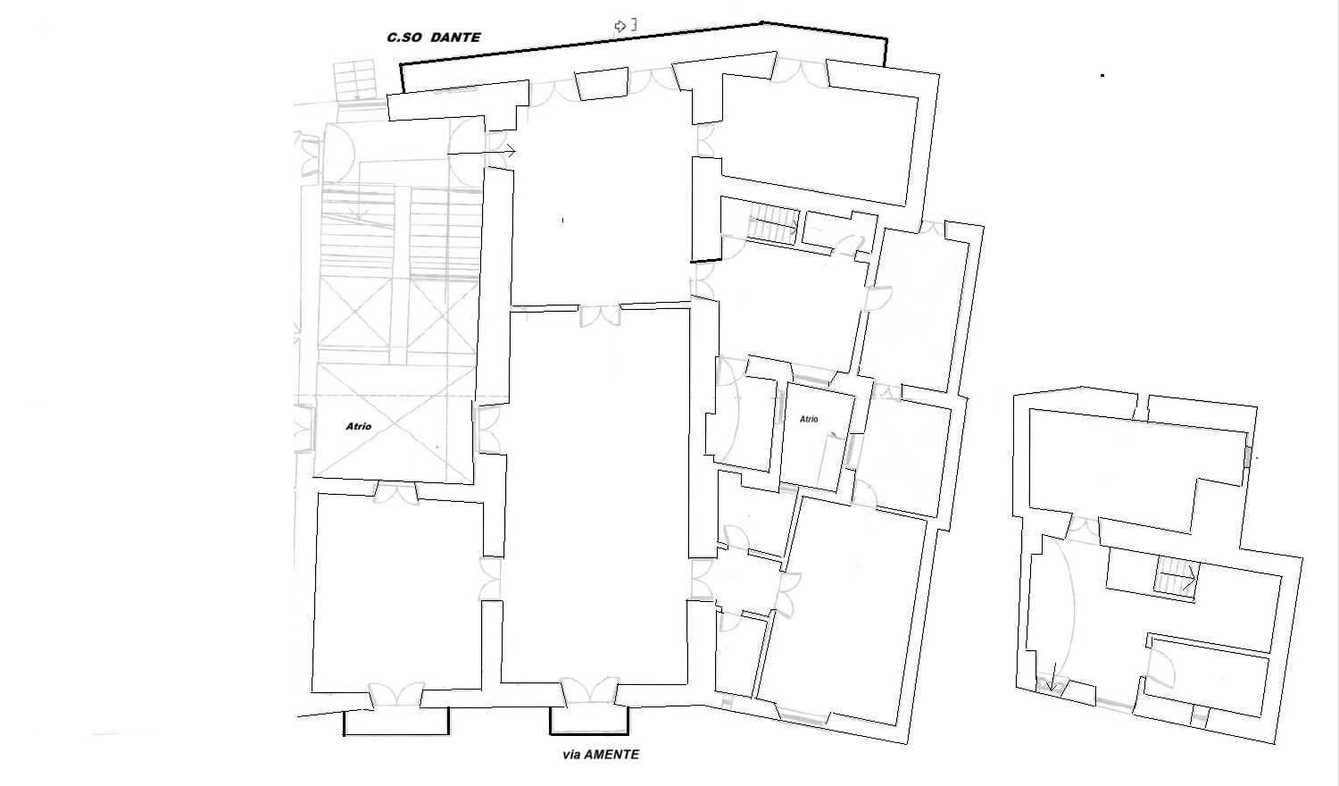
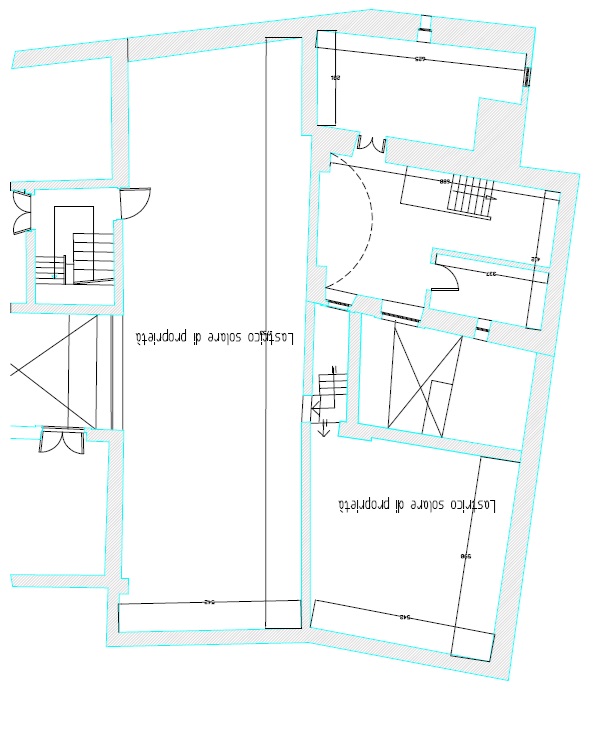
PALAZZO PASSARI–LUPIS – VIA AMENTE 32, NEL CENTRO STORICO PIÙ AFFASCINANTE DI MOLFETTA, ALL’INTERNO DELL’ELEGANTE PALAZZO PASSARI–LUPIS, PROPONIAMO UNA RESIDENZA UNICA PER FASCINO, AMPIEZZA E LUMINOSITÀ. UN APPARTAMENTO DI GRANDE RAPPRESENTANZA, DISTRIBUITO SU DUE LIVELLI, CHE SVILUPPA CIRCA 260 MQ INTERNI, ARRICCHITI DA TRE BALCONI PER COMPLESSIVI 18 MQ E DA UN LASTRICO SOLARE DI PROPRIETÀ ESCLUSIVA DI CIRCA 130 MQ.
RICHIEDI INFORMAZIONI
Sei interessato a visionare questo immobile, o desideri semplicemente ricevere maggiori informazioni? Compila questo form e verrai contattato da un Consulente Immobiliare professionista entro poche ore.
© 2026 CaseInsieme | Il primo portale per vendere e acquistare casa a Molfetta | Privacy Policy - Cookie Policy